Last updated: 5 มิ.ย. 2568 | 4879 จำนวนผู้เข้าชม |
รับสร้างโรงงาน สร้างโกดัง สีขาว ลำลูกกา รังสิต ปทุมธานี คลอง ราคาถูก
รับสร้างโกดัง สร้างโรงงาน พร้อมออกแบบ ราคาถูก คืนทุนไว แข็งแรง สร้างเร็ว
HWHH 20x30 ม. สูง 6.5 เมตร ราคา 2.95 ล้านบาท
พื้นเข็มตอก ปูพรม รับน้ำหนัก 1ตัน/ตรม. ราคา2.2 ล้านบาท
ด้วยระบบโกดังสำเร็จรูป ผนัง หลังคาเมทัลชีท สร้างเร็ว มาตรฐานวิศวกรรม
ใช้การสร้างโครงสร้างเหล็ก ระบบโกดังสำเร็จรูป
โครงสร้างเสาเป็นเหล็กไวแฟรงค์ โครงหลังคาเป็นเหล็กไวแฟรงค์
เวลาสร้าง 120 วัน
โทร 0817052132 หลุยแฮปปี้มีบ้าน ID Line :@happymeebaan
ลิงค์ไลน์ >> https://lin.ee/hT7pyNU
เวบไซท์>> https://www.happy-warehouse.com/
ยูทูป >> https://www.youtube.com/c/Happymeebaan
เฟสบุ้ค >> https://www.facebook.com/happymeebaan.warehouse.home/
ติ๊กต๊อก >> https://www.tiktok.com/@happymeebaan?_t=8ZyzGSDLBmE&_r=1
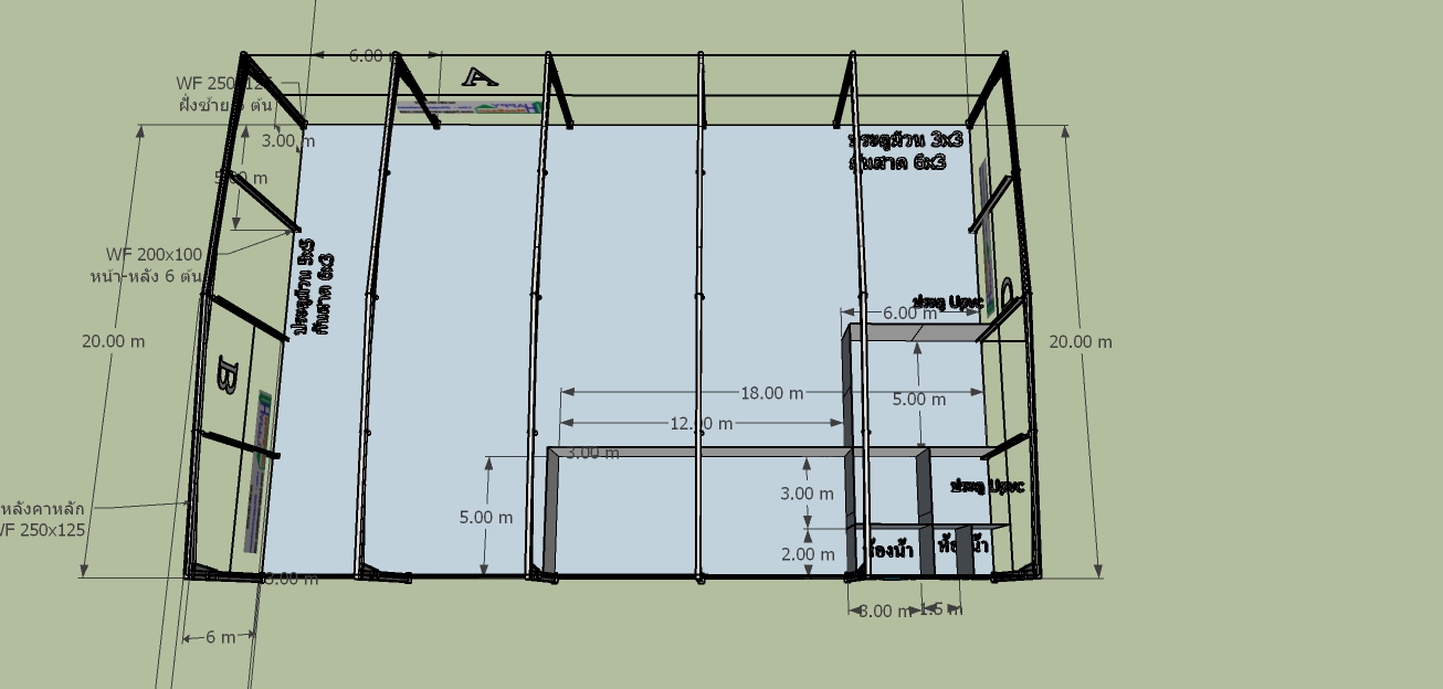
ขนาดโกดัง โครงสร้าง HWH 20x30 ม. สูง 6.5 เมตร ทรงจั่ว
สเปค
1- เสาข้าง/เสากลางเหล็กไวแฟรงค์ WF 250x125, เสาหน้า-หลัง WF 200x10 จั่วไวแฟรงค์ WF 250x125
2- หลังคาเมทอลชีทหนา 0.4 มม. บลูสโคป Zacc สี พร้อม PE กันร้อนหนา 5 มม หลังคาระบบคลิปล็อคป้องกันการรั่วซึม
แปหลังคากาวาไนส์หนา 2 มม ระยะ 1 เมตร
3- ผนังเมทอลชีทหนา 0.4 มม.บลูสโคป Zacc สี แปผนังกาวาไนส์หนา 0.8 มม ระยะ 1 เมตรเว้นก่ออิฐทั้งหมด
4- บานเกร็ดสูง 1 เมตร รวม 70 ตรม
5- กันสาด 6x3 เมตร และ 6x3 เมตร เว้นงานประตู ลูกค้าติดประตูเอง ใส่กรอบประตูไว้
6- หลังคาโปร่งแสง 2 ช่วงเสาตลอดแนว ตามแบบ
7- ติดตั้ง J Bolt
รับประกันโครงสร้าง 10 ปี รั่วซึมหลังคา 3 ปี อื่นๆ 1 ปี
ไม่รวมงานปรับและถมดิน ไม่รวมงานฐานราก
ไม่รวมงานออฟฟิศ ไม่รวมงานห้องน้ำ
ไม่รวมงานระบบไฟฟ้าและน้ำ ไม่รวมงานรางระบายน้ำสาธารณะต่างๆ
ใช้พื้นที่ลูกค้าในการตั้งแคมป์ และใช้น้ำไฟ ที่ลูกค้าจัดเตรียม
งวดงานโครงสร้าง
งวดที่ 1 มัดจำเพื่อผลิตชิ้นส่วน ชำระ 30%
งวดที่ 2 เมื่อส่งเสา โครงหลังคาครบ ชำระ 20%
งวดที่ 3 ติดตั้งโครงสร้างแล้วเสร็จ ชำระ 25%
งวดที่ 4 เมื่อส่งวัสดุที่เหลือมากกว่า90%(เมทัลชีท แป ผนัง หลังคา) ชำระ 15%
งวดที่ 5 ส่งมอบงาน ชำระ 10%
เริ่มต้นจากการออกแบบตัวอาคาร ให้ตรงความต้องการของลูกค้า โกดังไม่มีเสากลาง
จะใช้ประโยชน์ได้สูงสุด แข็งแรง สวยงาม มาตรฐานวิศวกรรม ลูกค้าใช้เป็นร้านค้า และที่เก็บสินค้าและแพ็คสินค้า
จึงมาจบกันที่โครงสร้างโกดังเหล็กไวแฟรงค์ ชนิด HWH ของ Happy Warehouse ดังรูปแบบนี้
ส่วนงานพื้นออกแบบไว้รับน้ำหนัก 1 ตัน/ตารางเมตร เข็มตอกปูพรม พื้นบนเข็ม






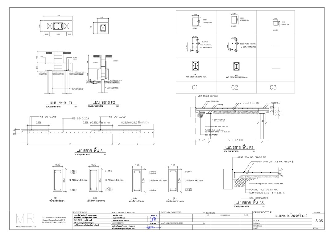
จากนั้นออกแบบงานฐานราก โดยการใช้เข็มตอกปูพรม เนื่องจากบริเวณนี้เป็นพื้นที่ดินนิ่ม จึงต้องระมัดระวัง
ในเรื่องการตอกเข็ม เป็นอย่างมาก เราใช้เข็มตอก I22 ตอกตามตำแหน่งที่วิศวกรออกแบบ พร้อมทำฟุตติ้ง
ตอม่อ คานคอดิน ผูกเหล็กพื้น 2 ชั้น ทำดรอปฟุตติ้ง เทคอนกรีตหนา 15 ซม ก็จะได้พื้นเข็มตอกปูพรม
รับน้ำหนัก 1 ตัน/ตรม.


เมื่อดำเนินการทำฐานราก ก็จะดำเนินการผลิตชิ้นส่วนที่โรงงานของ Happy warehouse และขนส่งชิ้น
ส่วนที่ผลิตไปที่หน้างานเพื่อ ติดตั้งโกดังด้วยระบบสำเร็จรูป ทำให้เราสามารถติดตั้งโกดังได้อย่างรวดเร็ว แข็งแรง
โดยเริ่มจากการติดตั้งเสา โกดัง ติดตั้งจั่ว ติดตั้งแปผนัง ติดตั้งแปหลังคา และติดตั้งหลังคา
จากนั้นก็จะทำการติดตั้ง ผนังเมทัลชีท เกร็ดระบายอากาศ ก่ออิฐ กันสาดเมัลชีท ตามแบบที่ออกไว้ทั้งหมด
เพียงเท่านี้เราก็สามารถส่งมอบโครงการโกดังให้เให้กับลูกค้าได้ใช้งานในเวลาที่กำหนด
ภายในระยะเวลา120-150 วัน หลังนี้ใช้หลังคาระบบคลิปล็อค คอยล์บลูสโคปสีขาว Asian White






































หลังนี้ใช้ระยะเวลาในการติดตั้งโครงสร้างอาคารทั้งหมด 30 วัน ก็สามารถส่งมอบงานได้
แต่ใช้เวลาภาพรวมในการก่อสร้าง ตั้งแต่ฐานราก งานกก่ออิฐ ห้องน้ำ โดยรวม 180 วัน
ข้อดีของ สร้างโรงงาน สร้างโกดัง สร้างคลังสินค้า ระบบโกดังสำเร็จรูป โครงการโกดังให้เช่า
HappyWarehouse
มีดังต่อไปนี้
1.เรามีประสบการณ์งานก่อสร้างโกดัง สร้างโรงงานโรงงานมากกว่า 200 โครงการ
2.เรามีประสบการณ์ด้านงานก่อสร้างโกดัง สร้างโรงงาน มากกว่า 10 ปี
3.เราเป็นโรงงานผลิต ทำให้สามารถควบคุมคุณภาพได้มากกว่าระบบก่อสร้างหน้า
ไชส์งานและมีประสบการณ์ตรงในการก่อสร้างอาคารสำเร็จรูป สร้างโกดัง สร้างโรงงาน
4.เรารับเหมางานก่อสร้างทั้งระบบตั้งแต่ ออกแบบงาน ก่สร้างงานฐานรากจนถึงตัว
อาคารสร้างโกดัง สร้างโรงงาน และสถาปัต
5.ใบเสนอราคาออกจากส่วนกลางโดยใช้โปรแกรมคำนวณวัสดุตามความเป็นจริง
น่าเชื่อถือไม่บวกมูลค่างานเกินความเป็นจริง
6.สร้างโกดัง สร้างโรงงาน เรารับประกันงานรั่วซึ่ม 1 ปี และรับประกันโครงสร้าง 10 ปี
7.การเสนอราคารวดเร็วเที่ยงตรง เป็นบริษัทเดียวที่สามารถเสนอราคาได้ในเวลาเพียง
5 นาที
8.เหล็กโครงหลังคาและแปเราใช้เหล็กกาวาไนช์ ทำให้ทนสนิมอายุการใช้งานยาวนาน
ความแข็งแรง 3500 KSC
9.หลังคาเราเป็นระบบคลิ๊ปล็อคทำให้ไม่มีการยิงน็อตจากหลังคาลดความเสี่ยง
หลังคารั่ว
10.ลูกค้าทำสัญญากับบริษัทผู้ผลิตโดยตรงทำให้ลูกค้ามั่นใจในการรับประกัน
และเงินไม่สูญไม่ผ่านคนกลาง
โทร 0817052132 หลุยแฮปปี้มีบ้าน ID Line :@happymeebaan
ลิงค์ไลน์ >> https://lin.ee/hT7pyNU
เวบไซท์>> https://www.happy-warehouse.com/
ยูทูป >> https://www.youtube.com/c/Happymeebaan
เฟสบุ้ค >> https://www.facebook.com/happymeebaan.warehouse.home/
ติ๊กต๊อก >> https://www.tiktok.com/@happymeebaan?_t=8ZyzGSDLBmE&_r=1
รับสร้างโกดัง,สร้างโกดัง,สร้างโรงงาน,รับสร้างโรงงาน,สร้างคลังสินค้า,รับสร้างคลังสินค้า,สร้างโกดังสำเร็จรูป,โกดังสำเร็จรูป โกดัง,คลังสินค้าสำเร็จรูป,happy warehouse,หลุยแฮปปี้มีบ้าน,Louishappymeebaan,Louishappywarehouse ,รับสร้างคลังสินค้า,HappyWarehouse,Warehouse,แวร์เฮ้าส์,โกดังไร้เสากลาง,โกดังสร้างไว,เหล็กไวด์แฟรงค์,แบบโรงงาน,แบบโกดัง,แบบโรงงานฟรี,แบบโกดังฟรี,แจกแบบโกดัง,แจกแบบโรงงานสร้างโกดัง,รับ สร้าง โกดัง โรงงาน,รับ สร้าง โกดัง,รับสร้าง โรงงาน ขนาด เล็ก,สร้าง โกดัง เอง,ก่อสร้าง โกดัง,สำนักงานสองชั้น,อาคารสองชั้น,รับสร้างโกดัง,รับสร้างโรงงาน,รับสร้างคลังสินค้า,รับ สร้าง โรงงาน,รับ สร้าง โกดัง, ,หลุยแฮปปี้มีบ้าน,Louishappymeebaan,Louishappywarehouse ,สร้างโกดัง ,สร้างโรงงาน,สร้างคลังสินค้า ,รับสร้างโกดัง ,รับสร้างโรงงาน,รับสร้างคลังสินค้า ,โกดังสำเร็จรูป ,สร้างโกดังเช่า ,โกดังให้เช่า ,ให้เช่าโกดัง ,warehouse,happywarehouse ,Home ,Knockdown ,Knockdownhome ,Prefab ,รับสร้างโกดังสำเร็จรูป ,สร้างโกดังสำเร็จรูป ,สร้างบ้านสำเร็จรูป,สร้างบ้านน็อคดาวน์,สร้างบ้าน ,รับสร้างบ้าน,แบบบ้าน ,แบบโกดัง ,แบบโรงงาน ,แบบคลังสินค้า ,แบบบ้านน็อคดาวน์,สร้างโรงงานขนาดใหญ่ ,สร้างโกดังขนาดใหญ่,สร้างคลังสินค้าขนาดใหญ่