Last updated: 17 ก.ค. 2567 | 5400 จำนวนผู้เข้าชม |
 
                    รับสร้างโกดัง รับสร้างโรงงาน บึงกุ่ม กรุงเทพ พร้อมชั้นลอย ชั้นสองทำออฟฟิศ ราคาถูก HappyMeebaan
สร้างโกดัง สร้างโรงงาน สร้างคลังสินค้า พร้อมออฟฟิศชั้นลอย
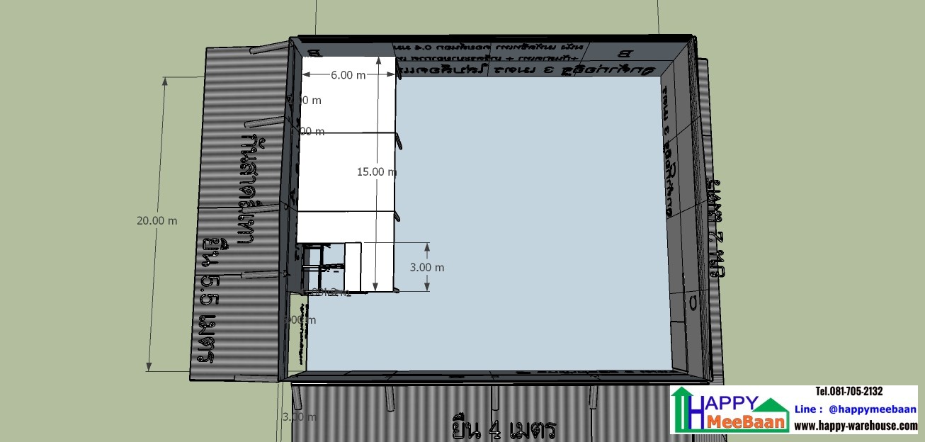
ขนาดกว้าง 20 เมตร ยาว 24 เมตร สูง 7 เมตร
สร้างโรงงานขนาดใหญ่ สร้างโกดังขนาดใหญ่ พร้อมออฟฟิศชั้นลอย ระบบโกดังสำเร็จรูป
รับสร้างโรงงาน รับสร้างโกดัง รับสร้างคลังสินค้าขนาดใหญ่
สร้างเร็ว แข็งแรง มาตรฐานวิศวกรรม  สร้างด้วยระบบโกดังสำเร็จรูป 
ใช้การสร้างโครงสร้างเหล็ก ระบบโกดังสำเร็จรูป
ผลิตชิ้นส่วนเหล็ก และวัสดุต่างๆจากโรงงานผลิตทำให้เสร็จไว แข็งแรง ใช้งานได้ทันที
โครงสร้างเสาเป็นเหล็กไวแฟรงค์ โครงหลังคาเป็นเหล็กกล่องกาวาไนส์ โครงถัก
ขนาดกว้าง 20 เมตร ยาว 24 เมตร สูง 7 เมตร พร้อมชั้นลอย 80 ตรม รวมพื้นที่ 560 ตรม
ราคาเฉพาะโครงสร้าง 2.75 ล้านบาท
ราคาฐานรากพื้นเข็มตอกปูพรม 1 ตัน/ตรม 1.8 ล้านบาท
ราคาก่ออิฐ ออฟฟิศ อื่นๆ 1 ล้านบาท
รวมงบประมาณ 5.55 ล้านบาท เฉลี่ย 9,900 บาท/ตรม.
เวลาสร้าง 2 เดือน
โทร 0817052132      หลุยแฮปปี้มีบ้าน   ID Line :@happymeebaan
ลิงค์ไลน์ >>  https://lin.ee/hT7pyNU
เวบไซท์>>   https://www.happy-warehouse.com/
ยูทูป >> https://www.youtube.com/c/Happymeebaan
เฟสบุ้ค >> https://www.facebook.com/happymeebaan.warehouse.home/
ติ๊กต๊อก >> https://www.tiktok.com/@happymeebaan?_t=8ZyzGSDLBmE&_r=1
 
สเปคงาน
ขนาดโกดัง โครงสร้าง HW-HC 20x24 สูง 7เมตร ทรงจั่ว เสาสูง 6 เมตร ทรัสสูง 1 เมตร
สเปค
1- เสาเหล็กไวแฟรงค์ จั่วโครงถักเหล็กกล่องกาวาไนส์ ทาสี ดำ หรือ น้ำเงิน เสา WF 250x125 , WF 150x75
จั่วโครงถักหลัก บน-ล่าง เหล็กกล่องกาวาไนส์ 2x4" หนา 1.5มม เหล็กถัก เหล็กกล่องกาวาไนส์ 2x2"หนา 1.2 มม
โครงซอย บน-ล่าง เหล็กกล่องกาวาไนส์ 2x2" หนา 1.2มม เหล็กถัก เหล็กกล่องกาวาไนส์ 1x2"หนา 1.2 มม
2- หลังคาเมทอลชีทหนา 0.4 มม.สีเทางคอยล์นอก พร้อม PE กันร้อน หนา 5 มมหลังคาระบบคลิปล็อคป้องกันการรั่วซึม
แปหลังคา กาวาไนส์ไร้สนิม โอเมกา หนา 1.5 มม ระยะแอด 1 เมตร พร้อมคลิ้กล็อค
3- ผนังเมทอลชีทหนา 0.4 มม.สีเทาคอยล์นอก แปผนังกาวาไนส์ โอเมกา สูง 10 ซม. หนา 0.8มม ระยะแอดแป 1 เมตร
หักผนังเมทัลชีท ด้านข้าง 3 เมตร ด้านหน้า 6 เมตร
4- ประตูสไลด์รางเลื่อนแขวน 3x3 ,3x3 เมตร
5- กันสาดขนาด 20x5.5 , 26x4 , 20x2 เมตร
6- เกร็ดระบายอากาศสูง 1 เมตร ตามแบบ
7-ชั้นลอยรับน้ำหนัก 300กก/ตรม พื้นคอนกรีต ขนาด 15x6ม.
8-ติดตั้ง J bolt
 
ไม่รวมค่าดำเนินการ ค่าโสหุ้ยขออนุญาต
ไม่รวมงานปรับและถมดิน ไม่รวมงานฐานราก
ไม่รวมงานห้องน้ำ รางระบายน้ำต่างๆ 
ไม่รวมงานระบบไฟฟ้าและน้ำ
ใช้พื้นที่ลูกค้าในการตั้งแคมป์ และใช้น้ำไฟ ที่ลูกค้าจัดเตรียม
รีวิวงานจริง
เริ่มต้นจากการออกแบบเบื้องต้นกับลูกค้า
 
        เริ่มต้นจากการออกแบบร่วมกับลูกค้า เพื่อให้ได้สิ่งที่ตรงความต้องการในการทำงาน อาคารหลังนี้เป็นอาคารหลังที่ 2
ที่ลูกค้าจ้างเราสร้าง ทาง Happy Warehouse โดย Happy Meebaan จึงทำการออกแบบโรงงาน ออกแบบโกดัง พร้อม
ออฟฟิศชั้นลอย เพื่อใช้เป็นออฟฟิศ ให้ตรงกับวัตถุประสงค์มากที่สุด หลังนี้ลูกค้าทำโกดังเก็บของ ผลิตสินค้าเล็กน้อย
 พร้อมออฟฟิศที่ใช้ในการทำงานและประชุม โดยอยากให้โกดังมีสีที่ตรงกับสีโรงงานหลังที่1 จึงออกแบบมาในรูปแบบนี้ 
ส่วนงานฐานรากลูกค้าทำที่กรุงเทพ เราจึงออกแบบเป็นพื้นคอนกรีตบนเข็มตอก รับน้ำหนัก 1ตัน/ตรม









เมื่อลูกค้าดำเนินการทำพื้นเข็มตอก 1 ตัน/ตรม เสร็จเรียบร้อย ในส่วนโครงสร้างโกดัง ทั้งหมดผลิตจากโรงงาน
Happy warehouse และนำมาประกอบหน้างาน ทั้งหมดออกแบบโดยวิศวกร มีการคำนวณที่ครบถ้วน
หลังนี้เริ่มต้นสร้างโรงงานจาก การติดตั้งโครงสร้างเสาไวแฟรงค์ โดยใช้ระบบเจโบลท์ โครงสร้างจั่ว เป็นทรัสโครงถักเหล็ก
กล่องกาวาไนส์ หลังนี้อาคารกว้าง 20 เมตร ไม่มีเสากลาง ติดตั้งโครงสร้างหลังคา หลังคาเมทัลชีท ระบบคลิปล็อค ทำให้
โอกาสรั่วซึมน้อยมาก และติดตั้งผนังเมทัลชีทสีเทา หลังนี้ใช้สีเทาคอยล์ดองบู พร้อมสร้างชั้นลอย ชั้นสอง ด้วยระบบสำเร็จรูป
วางแผ่นพื้นคอนกรีตรับน้ำหนัก 300 กก/ตรม ลูกค้าใช้ทำงานออฟฟิศ พร้อม ทำบันไดเหล็กกว้าง 1.5 เมตร



















 

 





























ราคาโครงสร้างอาคาร ไม่รวมงานฐานราก ไม่รวมงานไฟฟ้า
เฉลี่ย 4,500-5,000 บาท/ตรม.
งานฐานรากเข็มตอก และงานพื้นคอนกรีตบนเข็ม 1ตัน/ตรม.
ราคา 3,2000 - 3,500 บาท/ตรม.
ใช้ระยะเวลาในการติดตั้งโครงสร้างอาคารทั้งหมด 2เดือน  ก็สามารถส่งมอบงานได้
ข้อดีของ สร้างโรงงาน สร้างโกดัง สร้างคลังสินค้า ระบบโกดังสำเร็จรูป 
HappyWarehouse
มีดังต่อไปนี้
1.เรามีประสบการณ์งานก่อสร้างโกดัง สร้างโรงงานโรงงานมากกว่า 200 โครงการ
2.เรามีประสบการณ์ด้านงานก่อสร้างโกดัง สร้างโรงงาน มากกว่า 10 ปี
3.เราเป็นโรงงานผลิต ทำให้สามารถควบคุมคุณภาพได้มากกว่าระบบก่อสร้างหน้า ไชส์งานและมีประสบการณ์ตรงในการก่อสร้างอาคารสำเร็จรูป
สร้างโกดัง สร้างโรงงาน
4.เรารับเหมางานก่อสร้างทั้งระบบตั้งแต่ ออกแบบงาน ก่สร้างงานฐานรากจนถึงตัวอาคารสร้างโกดัง สร้างโรงงาน และสถาปัต 
5.ใบเสนอราคาออกจากส่วนกลางโดยใช้โปรแกรมคำนวณวัสดุตามความเป็นจริงน่าเชื่อถือไม่บวกมูลค่างานเกินความเป็นจริง
6.สร้างโกดัง สร้างโรงงาน เรารับประกันงานรั่วซึ่ม 1 ปี และรับประกันโครงสร้าง 10 ปี
7.การเสนอราคารวดเร็วเที่ยงตรง เป็นบริษัทเดียวที่สามารถเสนอราคาได้ในเวลาเพียง 5 นาที
8.เหล็กโครงหลังคาและแปเราใช้เหล็กกาวาไนช์ ทำให้ทนสนิมอายุการใช้งานยาวนานความแข็งแรง 3500 KSC
9.หลังคาเราเป็นระบบคลิ๊ปล็อคทำให้ไม่มีการยิงน็อตจากหลังคาลดความเสี่ยงหลังคารั่ว
10.ลูกค้าทำสัญญากับบริษัทผู้ผลิตโดยตรงทำให้ลูกค้ามั่นใจในการรับประกันและเงินไม่สูญไม่ผ่านคนกลาง
 
โทร 0817052132     หลุยแฮปปี้มีบ้าน   ID Line :@happymeebaan
ลิงค์ไลน์ >>  https://lin.ee/hT7pyNU
เวบไซท์>> https://www.happy-warehouse.com/
ยูทูป >> https://www.youtube.com/c/Happymeebaan
เฟสบุ้ค >> https://www.facebook.com/happymeebaan.warehouse.home/
ติ๊กต๊อก >> https://www.tiktok.com/@happymeebaan?_t=8ZyzGSDLBmE&_r=1
รับสร้างโกดัง,สร้างโกดัง,สร้างโรงงาน,รับสร้างโรงงาน,สร้างคลังสินค้า,รับสร้างคลังสินค้า,สร้างโกดังสำเร็จรูป,โกดังสำเร็จรูป โกดัง,คลังสินค้าสำเร็จรูป,happy warehouse,หลุยแฮปปี้มีบ้าน,Louishappymeebaan,Louishappywarehouse ,รับสร้างคลังสินค้า,HappyWarehouse,Warehouse,แวร์เฮ้าส์,โกดังไร้เสากลาง,โกดังสร้างไว,เหล็กไวด์แฟรงค์,แบบโรงงาน,แบบโกดัง,แบบโรงงานฟรี,แบบโกดังฟรี,แจกแบบโกดัง,แจกแบบโรงงานสร้างโกดัง,รับ สร้าง โกดัง โรงงาน,รับ สร้าง โกดัง,รับสร้าง โรงงาน ขนาด เล็ก,สร้าง โกดัง เอง,ก่อสร้าง โกดัง,สำนักงานสองชั้น,อาคารสองชั้น,รับสร้างโกดัง,รับสร้างโรงงาน,รับสร้างคลังสินค้า,รับ สร้าง โรงงาน,รับ สร้าง โกดัง, ,หลุยแฮปปี้มีบ้าน,Louishappymeebaan,Louishappywarehouse ,สร้างโกดัง ,สร้างโรงงาน,สร้างคลังสินค้า ,รับสร้างโกดัง ,รับสร้างโรงงาน,รับสร้างคลังสินค้า ,โกดังสำเร็จรูป ,สร้างโกดังเช่า ,โกดังให้เช่า ,ให้เช่าโกดัง ,warehouse,happywarehouse ,Home ,Knockdown ,Knockdownhome ,Prefab ,รับสร้างโกดังสำเร็จรูป ,สร้างโกดังสำเร็จรูป ,สร้างบ้านสำเร็จรูป,สร้างบ้านน็อคดาวน์,สร้างบ้าน ,รับสร้างบ้าน,แบบบ้าน ,แบบโกดัง ,แบบโรงงาน ,แบบคลังสินค้า ,แบบบ้านน็อคดาวน์,สร้างโรงงานขนาดใหญ่ ,สร้างโกดังขนาดใหญ่,สร้างคลังสินค้าขนาดใหญ่