Last updated: 12 Dec 2023 | 3530 Views |
แจกแบบ 3D แจกแบบโกดัง แบบโรงงานพร้อมออฟฟิศและบ้านพักอาศัย Happy Meebaan
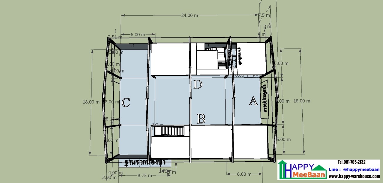
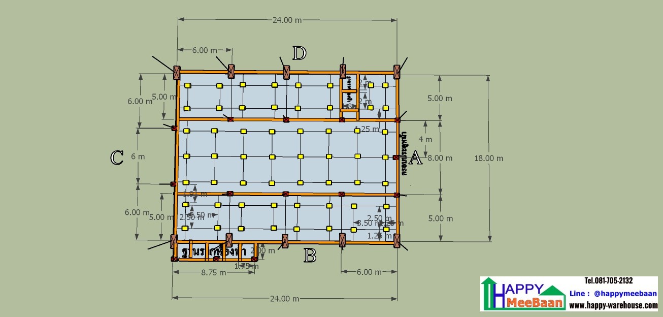
งานโครงสร้าง อาคารสำเร็จ HWH 18x24ม. สูง 7.5 เมตร
แข็งแรง สร้างไว ประหยัดต้นทุน
แจกแบบโรงงาน แบบโกดัง แบบคลังสินค้า สร้างด้วยระบบโกดังสำเร็จรูป รับสร้างโกดัง
รับสร้างโรงงาน
ติดต่อสายตรงมาที่ วิศวกร ประเมินราคาที่ชัดเจน
โทร 0817052132 Line : @happymeebaan
ลิงค์ไลน์ >> https://lin.ee/hT7pyNU
เวบไซท์>> https://www.happy-warehouse.com/
ยูทูป >> https://www.youtube.com/c/Happymeebaan
เฟสบุ้ค >> https://www.facebook.com/happymeebaan.warehouse.home/
ติ๊กต๊อก >> https://www.tiktok.com/@happymeebaan?_t=8ZyzGSDLBmE&_r=1
ราคาและสเปคเบื้องต้น
1.งานฐานราก 18x24 เสาเข็ม คอนกรีต รวมงานพื้นห้องน้ำชั้น1 1,950,000บาท
2. งานโครงสร้าง อาคารสำเร็จ HWH 18x24 ม. สูง 7.5 เมตร ทรงจั่ว พื้นที่ชั้นลอย 172.8 ตรม 3,400,000 บาท
3.งานก่ออิฐแดง ฉาบ ทาสี รอบโกดัง 650,000 บาท
4.งานก่ออิฐห้องน้ำชั้น1 ห้องน้ำชั้น2 + พื้นห้องน้ำชั้น2 รวมถังบำบัด ระบบท่อน้ำ 620,000 บาท
5. งานเขียนแบบและออกแบบ สถาปนิก วิศวกรเซ็น 140บาท/ตรม พื้นที่ 605 ตรม ถ้าไม่เอาไม่ต้องชำระ 90,000 บาท
งานฐานราก 18x24 ม. เข็มตอก ไม่รวมงานถมดิน ปรับพื้นที่
1- เข็มตอก 22 พร้อมฟุตติ้ง ตามจำนวนจุดโครงสร้างเสา รับมุมห้องน้ำ
2-คานคอดิน ขนาด 20x50 ซม รอบอาคาร และตำแหน่งพื้นชั้น2 คานตำแหน่งห้องน้ำ
3-งานคอนกรีตบนเข็มตอก 22 พื้นรับน้ำหนัก 1ตัน/ตรม ไวเมช 6 มม@20 2 ชั้นคอนกรีตหนา 15 ซม 320 KSCcu
4-งานพื้นคอนกรีตห้องน้ำชั้น1
ขนาดโกดัง โครงสร้าง HWH 18x24 ม. สูง 7.5 เมตร ทรงจั่ว
สเปค
1- เสาข้าง/เสากลางเหล็กไวแฟรงค์ WF 250x125, เสาหน้า-หลัง WF 150x75 จั่วไวแฟรงค์ WF 250x125
2- หลังคาเมทอลชีทหนา 0.4 มม. บลูสโคป Zacc สี หลังคาระบบคลิปล็อค แปหลังคากาวาไนส์หนา 1.5 มม ระยะ 1 เมตร
3- ผนังเมทอลชีทหนา 0.4 มม.บลูสโคป Zacc สี แปผนังกาวาไนส์หนา 0.8 มม ระยะ 1 เมตร
4- บานเกร็ดสูง 1 เมตร 24 ตรม.
5-กันสาด 18x6 เมตร กันสาด 24x2.5 เมตร กันสาด 12x1.5 เมตร
6- เว้นงานประตูม้วน
7-โครงสร้างพื้นชั้น2 แผ่นพื้นคอนกรีตหนา5 ซม เทท้อปปิ้ง 5ซม โครงสร้างรับ 300กก/ตรม พื้นปั่นมัน ลูกค้าปูกระเบื้องเอง
พื้นที่ชั้นสอง ขนาด 18x5เมตร 2 ฝั่ง ( พื้นที่รวมบันได) เว้นตำแหน่งห้องน้ำชั้นสอง รวม 172.8 ตรม
8-โครงสร้างบันไดเหล็ก กว้าง 1.2 เมตร จำนวน 2 ชุด
9- ติดตั้ง J Bolt
งานก่ออิฐ รอบโกดัง
1. ก่ออิฐแดง + เอ็นทับหลัง ตามประตู หน้าต่าง พื้นที่รวม 414 ตรม.
2. ฉาบ ทาสีงานสีน้ำอะครีลิค กึ่งเงา/ด้าน TOA/JOTUN ไม่รวมงานสกิมผิว
งานก่ออิฐห้องน้ำชั้น1 ห้องน้ำชั้น2 + พื้นห้องน้ำชั้น2 รวมถังบำบัด ระบบท่อน้ำ
1.ก่ออิฐแดง ฉาบ ทาสีด้านนอก ห้องน้ำภายนอก ชั้น1 พื้นที่ 2x8.75 สูง4 เมตร แบ่งเป็น 5 ห้อง
2. งานระบบท่อ และบำบัดห้องน้ำภายนอก DOS 1600 L งานวางท่อน้ำดี-น้ำทิ้ง ภายในห้องน้ำ
3.ก่ออิฐแดง ฉาบ ทาสีด้านนอก ห้องน้ำ ภายใน ชั้น1+ชั้น2 พื้นที่ 1.8x4 สูง3.5 เมตร แบ่งเป็น 4 ห้อง
4.งานเทพื้นชั้น2 ห้องน้ำ บนคานเหล็กที่ ( หลุยเตรียมไว้ ) พื้นที่ 1.8x4เมตร
5.งานระบบท่อ และบำบัดห้องน้ำภายในชั้น 1+ชั้น2 DOS 1600 L งานวางท่อน้ำดี-น้ำทิ้ง ภายในห้องน้ำ
ราคานี้ ยังไม่รวมงานค่าแรง+ค่าวัสดุ ของการปูกระเบื้องผนัง กระเบื้องพื้น ประตู ฝ้า สุขภัณฑ์ ทั้งหมด


















ด้วยผลงานการสร้างโรงงาน สร้างโกดัง ด้วยระบบโกดังสำเร็จรูป
เป็นระยะเวลามากกว่า 10 ปี มีผล
งาน มากกว่า 200 หลัง ทำให้ลูกค้ามั่นใจได้ว่าจะได้โรงงาน ได้โกดัง ที่ดี
มีคุณภาพ มาตรฐานวิศวกรรม ในระยะ
เวลาการ สร้างที่รวดเร็ว และราคาที่เหมาะสม
สิ่งที่ลูกค้าจะได้รับ เมื่อสร้างโกดัง สร้างโรงงาน กับ Happy Warehouse
1> รับประกันโครงสร้างโกดัง โครงสร้างอาคาร 10 ปี รั่วซึม 3 ปี
2> ลูกค้าได้รับโกดัง โรงงานที่แข็งแรง ปลอดภัย มาตรฐานวิศวกรรม
3> สบายใจกับปัญหารั่วซึมเนื่องจากเราใช้หลังคาระบบคลิปล็อค ไม่ยิงน็อตสกรูบนหลังคา
4> ราคาตามที่ตกลงครั้งแรกในการเซ็นสัญญา ไม่มีเพิ่มเติม
5> จบงาน ไม่ทิ้งงาน
6> ได้รับโกดังตามระยะเวลาที่กำหนด รวดเร็ว ใช้งานได้ไว คืนทุนไว
ติดต่อสายตรงมาที่ วิศวกร ประเมินราคาที่ชัดเจน
โทร 0817052132 Line : @happymeebaan
ลิงค์ไลน์ >> https://lin.ee/hT7pyNU
เวบไซท์>> https://www.happy-warehouse.com/
ยูทูป >> https://www.youtube.com/c/Happymeebaan
เฟสบุ้ค >> https://www.facebook.com/happymeebaan.warehouse.home/
ติ๊กต๊อก >> https://www.tiktok.com/@happymeebaan?_t=8ZyzGSDLBmE&_r=1
แบบโรงงาน #แบบโกดัง #แบบโรงงานฟรี #แบบโกดังฟรี
แบบโรงงาน,แบบโกดัง,แบบโรงงานฟรี,แบบโกดังฟรี,แจกแบบโกดัง,แจกแบบโรงงาน
แบบโรงงาน,แบบโกดัง,แบบโรงงานฟรี,แบบโกดังฟรี,แจกแบบโกดัง,แจกแบบโรงงานสร้างโกดัง,รับสร้างโกดัง,สร้างโรงงาน,รับสร้างโรงงาน,สร้างคลังสินค้า,รับสร้างคลังสินค้า,สร้างโกดังสำเร็จรูป, โกดัง,คลังสินค้าสำเร็จรูป,โกดังราคามิตรภาพ,รับสร้างคลังสินค้า,HappyWarehouse,Warehouse,แวร์เฮ้าส์,โกดังไร้เสากลาง,โกดังสร้างไว,เหล็กไวด์แฟรงค์,รับ สร้าง โกดัง โรงงาน,รับ สร้าง โกดัง,รับสร้าง โรงงาน ขนาด เล็ก,สร้าง โกดัง เอง,ก่อสร้าง โกดัง,สำนักงานสองชั้น,อาคารสองชั้น,รับสร้างโกดัง,รับสร้างโรงงาน,รับสร้างคลังสินค้า,รับ สร้าง โรงงาน,รับ สร้าง โกดัง, ,หลุยแฮปปี้มีบ้าน,Louishappymeebaan,Louishappywarehouse ,สร้างโกดัง ,สร้างโรงงาน,สร้างคลังสินค้า ,รับสร้างโกดัง ,รับสร้างโรงงาน,รับสร้างคลังสินค้า ,โกดังสำเร็จรูป ,สร้างโกดังเช่า ,โกดังให้เช่า ,ให้เช่าโกดัง ,warehouse,happywarehouse ,Home ,Knockdown ,Knockdownhome ,Prefab ,รับสร้างโกดังสำเร็จรูป ,สร้างโกดังสำเร็จรูป ,สร้างบ้านสำเร็จรูป,สร้างบ้านน็อคดาวน์,สร้างบ้าน ,รับสร้างบ้าน,แบบบ้าน ,แบบโกดัง ,แบบโรงงาน ,แบบคลังสินค้า ,แบบบ้านน็อคดาวน์