Last updated: 24 ต.ค. 2566 | 13218 จำนวนผู้เข้าชม |
สร้างออฟฟิศ สร้างห้องเก็บของ สร้างคลังขนาดเล็ก ด้วยผนังเบา ผนัง SandwichPanel EPS Isowall
ราคาถูก Happy Meebaan
สร้างออฟฟิศสำเร็จรูป ผนังEPS ออฟฟิศ work from home WFH ราคาถูก Happy Meebaan
รับสร้างออฟฟิศสำเร็จรูป ออฟฟิศ สร้างบ้านพัก work from home WFH ราคาถูก
รับสร้างออฟฟิศสำเร็จรูป ออฟฟิศผนัง Sandwich Panel ผนัง Isowall ผนัง EPS ราคาถูก
ผนัง EPS Isowall Sandwich panel ผนัง Happy PU
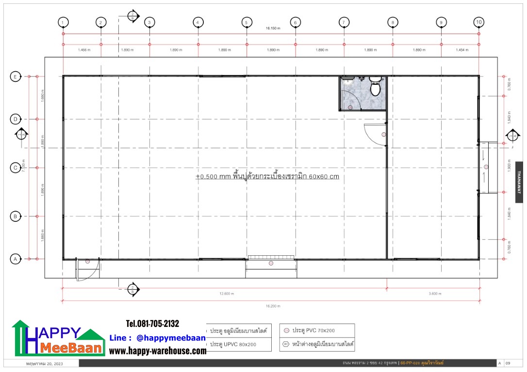
ขนาดอาคารกว้าง 7 เมตร ยาว16 เมตร สูง 3 เมตร พร้อมแบ่งห้องภายในตามแบบ
สร้างภายใน 30 วัน
สนใจสร้างบ้านสำเร็จรูป ออฟฟิศสำเร็จรูป
โทร 0817052132 Line : @happymeebaan
ลิงค์ไลน์ >> https://lin.ee/hT7pyNU
เวบไซท์>> https://www.happy-warehouse.com/
ยูทูป >> https://www.youtube.com/c/Happymeebaan
เฟสบุ้ค >> https://www.facebook.com/happymeebaan.warehouse.home/
ติ๊กต๊อก >> https://www.tiktok.com/@happymeebaan?_t=8ZyzGSDLBmE&_r=1
อาคารสำนักงาน ห้องทำงาน ห้องเก็บของ ออฟฟิศสำนักงาน ผนังสำเร็จรูป กว้าง 7ม. ยาว 16 เมตร สูง 3 เมตร
1-ผนัง Sandwich Panel Happy สีขาวเทา หนา 5 ซม.
2-โครงสร้างเหล็กตามแบบวิศวกรรมบริษัท ( เหล็กไร้สนิม )
3-หลังคา Sandwich Panel Happy ด้านบนสีมาตรฐาน ด้านล่างสีขาว หนา 5 ซม.
4-กั้นผนังตามแบบ งานประตู หน้าต่าง
5-ติดตั้งบนพื้นคอนกรีตที่ลูกค้าเตรียมไว้ ปูกระเบื้องเองภายในเมื่อติดตั้งผนังเสร็จสิ้น
รับประกันโครงสร้าง 5 ปี รั่วซึม 1 ปี
ราคาไม่รวมงานฐานรากลูกค้าเทปูนไว้
ราคาไม่รวมการดำเนินการขออนุญาต และค่าโสหุ้ยอื่นๆ
ราคาไม่รวมการเดินระบบน้ำ ระบบไฟฟ้า
ลูกค้าเตรียมระบบน้ำ ระบบไฟ เพื่อใช้ในการติดตั้ง
เริ่มต้นจากการออกแบบร่วมกับลูกค้าเพื่อให้ได้ห้อง ที่ตรงความต้องการ จนได้ข้อสรุป
ลูกค้าจะทำพื้นคอนกรีตไว้ ทาง Happy จะดำเนินการผลิตชิ้นส่วนผนัง หลังคา Sandwich Panel ,EPS,Isowall
มาดำเนินการติดตั้ง และปูกระเบื้องทับภายในอีกครั้ง พร้อมติดตั้งประตูหน้าต่าง กระจกต่างๆ






















ขนาดกว้าง 7 เมตร ยาว 16 เมตร สูง 3เมตร จั่วกลางสูง 3.5 เมตร
รวมพื้นที่ใช้สอย 112 ตรม.
ราคาโครงสร้างด้านบน 7,000-10,000 บาท/ตรม
ใช้ระยะเวลาในการติดตั้งโครงสร้างอาคารทั้งหมด 15 วัน ก็สามารถส่งมอบงานได้
ข้อดีของ สร้างโรงงาน สร้างโกดัง สร้างคลังสินค้า ระบบโกดังสำเร็จรูป
HappyWarehouse มีดังต่อไปนี้
1.เรามีประสบการณ์งานก่อสร้างโกดัง สร้างโรงงานโรงงานมากกว่า 200 โครงการ
2.เรามีประสบการณ์ด้านงานก่อสร้างโกดัง สร้างโรงงาน มากกว่า 10 ปี
3.เราเป็นโรงงานผลิต ทำให้สามารถควบคุมคุณภาพได้มากกว่าระบบก่อสร้างหน้า
ไชส์งานและมีประสบการณ์ตรงในการก่อสร้างอาคารสำเร็จรูป สร้างโกดัง สร้างโรงงาน
4.เรารับเหมางานก่อสร้างทั้งระบบตั้งแต่ ออกแบบงาน ก่สร้างงานฐานรากจนถึงตัวอาคารสร้างโกดัง
สร้างโรงงาน และสถาปัต
5.ใบเสนอราคาออกจากส่วนกลางโดยใช้โปรแกรมคำนวณวัสดุตามความเป็นจริง
น่าเชื่อถือไม่บวกมูลค่างานเกินความเป็นจริง
6.สร้างโกดัง สร้างโรงงาน เรารับประกันงานรั่วซึ่ม 1 ปี และรับประกันโครงสร้าง 10 ปี
7.การเสนอราคารวดเร็วเที่ยงตรง เป็นบริษัทเดียวที่สามารถเสนอราคาได้ในเวลาเพียง 5 นาที
8.เหล็กโครงหลังคาและแปเราใช้เหล็กกาวาไนช์ ทำให้ทนสนิมอายุการใช้งานยาวนานความแข็งแรง 3500 KSC
9.หลังคาเราเป็นระบบคลิ๊ปล็อคทำให้ไม่มีการยิงน็อตจากหลังคาลดความเสี่ยงหลังคารั่ว
10.ลูกค้าทำสัญญากับบริษัทผู้ผลิตโดยตรงทำให้ลูกค้ามั่นใจในการรับประกัน
และเงินไม่สูญไม่ผ่านคนกลาง
โทร 0817052132 หลุยแฮปปี้มีบ้าน ID Line :@happymeebaan
ลิงค์ไลน์ >> https://lin.ee/hT7pyNU
เวบไซท์>> https://www.happy-warehouse.com/
ยูทูป >> https://www.youtube.com/c/Happymeebaan
เฟสบุ้ค >> https://www.facebook.com/happymeebaan.warehouse.home/
ติ๊กต๊อก >> https://www.tiktok.com/@happymeebaan?_t=8ZyzGSDLBmE&_r=1
รับสร้างออฟฟิศสำเร็จรูป,ออฟฟิศสำเร็จรูป,รับสร้างห้องทำงาน,รับสร้างบ้านเช่า,รับสร้างคลังสินค้าผนังEPS,ผนังEPS,ผนังSandwichPanel,ผนังIsowall,happywarehouse,หลุยแฮปปี้มีบ้าน,Louishappymeebaan,Louishappywarehouse ,happymeebaan,แฮปปี้มีบ้าน,รับสร้างบ้านสำเร็จรูป,บ้านสำเร็จรูป,ออฟฟิศสำเร็จูป,รับสร้างออฟฟิศ,บ้านพักพนักงาน,บ้านน็อคดาวน์,สร้างออฟฟิศ,work from home,แบบบ้านน็อคดาวน์สวยๆ,แบบบ้านน็อคดาวน์ชั้นเดียว,บ้านน็อคดาวน์ 2 ชั้น,บ้านน็อคดาวน์โครงสร้างเหล็ก ,คลังสินค้าสำเร็จรูป