Last updated: 9 ก.ย. 2565 | 10490 จำนวนผู้เข้าชม |
สร้างคลังสินค้า สร้างโกดัง เก็บของออนไลน์ ราคาถูก แข็งแรง รวดเร็ว ด้วยระบบโกดัง
สำเร็จรูป สร้างเร็ว แข็งแรง มาตรฐานวิศวกรรม
สร้างด้วยระบบโกดังสำเร็จรูป ใช้การสร้างโครงสร้างเหล็ก ระบบโกดังสำเร็จรูป
ผลิตชิ้นส่วนเหล็ก และวัสดุต่างๆจากโรงงานผลิตทำให้เสร็จไว แข็งแรง ใช้งานได้ทันที
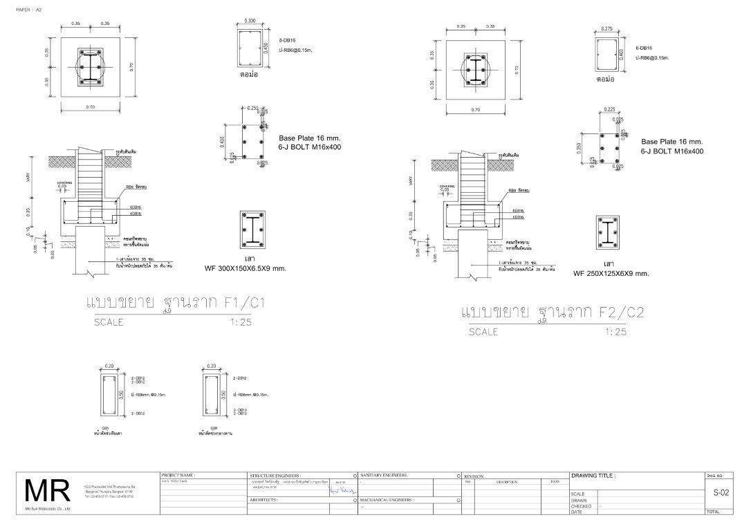
โครงสร้างเสาเป็นเหล็กไวแฟรงค์ โครงหลังคาเป็นเหล็กเหล็กไวแฟรงค์
เวลาสร้าง 45 วัน
โทร 0817052132 หลุยแฮปปี้มีบ้าน ID Line :@happymeebaan
ลิงค์ไลน์ >> https://lin.ee/hT7pyNU
เวบไซท์>> https://www.happy-warehouse.com/
ยูทูป >> https://www.youtube.com/c/Happymeebaan
เฟสบุ้ค >> https://www.facebook.com/happymeebaan.warehouse.home/
ขนาดโกดัง โครงสร้าง WH-H20x50 ม. สูงหน้า 10 เมตร สุงหลัง 8 เมตร ทรงโมเดิร์น
สเปค
1- เสาเหล็กไวแฟรงค์ WF 250x125 จั่วไวแฟรงค์ WF250x125
2- หลังคาเมทอลชีทหนา 0.4 มม.อลูซิง Blue Scope พร้อม PE กันร้อนหนา 5 มม.
หลังคาระบบคลิปล็อคป้องกันการรั่วซึม ชายหลังคา เสอมอาคาร ด้านน้ำไหล ยื่น 15 ซม.
( ไม่รวมเหล็กติดรางน้ำ และรางน้ำ )
3-เว้นผนังเมทอลชีททั้งหมด ตั้งแต่ขอบถึงพื้น ( ทีมผนัง เก็บขอบเฟลชชิ่งหลังคาเอง )
4- ติดตั้ง J Bolt
ราคาโครงสร้างอาคาร ไม่รวมงานผนัง ไม่รวมงานฐานราก ไม่รวมงานไฟฟ้า
ราคา 3,200-6,500 บาท/ตรม.
งานฐานรากเข็มตอก และงานพื้นรับน้ำหนัก 1 ตันต่อตารางเมตร
ราคา 3,500 - 3,800 บาท/ตรม.
งานฐานรากเข็มเจาะ และงานพื้นรับน้ำหนัก 1 ตันต่อตารางเมตร
ราคา 5,500 -8,000 บาท/ตรม.
รีวิวโครงสร้าง
เริ่มต้นจากการออกแบบร่วมกับลูกค้า เพื่อให้ได้สิ่งที่ตรงความต้องการมากที่สุด
หลังนี้ลูกค้าต้องการเป็นโกดัง ที่เก็บของและต้องการโชว์เมื่อทำการไลฟ์ สินค้า
ดังนั้น จึงต้องการทำเป็นโกดังที่สวยงาม และดูโปร่ง แข็งแรง
ทาง Happy Warehouse โดย Happy Meebaan จึงทำการออกแบบคลังสินค้า
ออกแบบโกดัง ให้ ซึ่งหลังนี้ ทางเราทำเฉพาะตัว เสา โครงหลังคา และมุงหลังคา




หลังนี้ลูกค้าเป็นผู้ทำงานฐานราก ก็จะดำเนินการผลิตชิ้นส่วนที่โรงงานของ Happy
warehouse และขนส่งชิ้นส่วนที่ผลิตไปที่หน้างานเพื่อ ติดตั้งโกดังด้วยระบบสำเร็จรูป
โดยที่ทางเราจะเป็นผู้ดำเนินการออกแบบฐานรากให้ และดำเนินการติดตั้ง J bolt ให้








ช่วงระยะเวลานี้ทางโรงงานก็จะทำการผลิตชิ้นส่วนที่โรงงานและส่งมาเพื่อติดตั้งหน้างาน
โดยเริ่มจากการติดตั้งเสา โกดัง ซึ่งเป็นเสาไวแฟรงค์ ติดตั้งจั่ว ติดตั้งคานรัดรอบอาคาร
ติดตั้งจั่ว หรือจันทันหลังคาเป็นเสาไวแฟรงค์ ติดตั้งแปหลังคา และติดตั้งหลังคาระบบคลิ้กล็อค
ไม่มีการยิงสกรูจากด้านบน ทำให้เรากล้ารับประกันรั่วซึม 3 ปี
























หลังนี้ พื้นที่รวม 1,000 ตารางเมตร ไม่มีพื้นคอนกรีต ทำให้ติดตั้งคลังสินค้านี้ค่อนข้างลำบาก
จึงใช้ระยะเวลาในการติดตั้งโครงสร้างอาคารทั้งหมด 45 วัน ก็สามารถส่งมอบงานได้
ข้อดีของ สร้างโรงงาน สร้างโกดัง สร้างคลังสินค้า ระบบโกดังสำเร็จรูป
HappyWarehouse
มีดังต่อไปนี้
1.เรามีประสบการณ์งานก่อสร้างโกดัง สร้างโรงงานโรงงานมากกว่า 200 โครงการ
2.เรามีประสบการณ์ด้านงานก่อสร้างโกดัง สร้างโรงงาน มากกว่า 10 ปี
3.เราเป็นโรงงานผลิต ทำให้สามารถควบคุมคุณภาพได้มากกว่าระบบก่อสร้างหน้า
ไชส์งานและมีประสบการณ์ตรงในการก่อสร้างอาคารสำเร็จรูป สร้างโกดัง สร้างโรงงาน
4.เรารับเหมางานก่อสร้างทั้งระบบตั้งแต่ ออกแบบงาน ก่สร้างงานฐานรากจนถึงตัว
อาคารสร้างโกดัง สร้างโรงงาน และสถาปัต
5.ใบเสนอราคาออกจากส่วนกลางโดยใช้โปรแกรมคำนวณวัสดุตามความเป็นจริง
น่าเชื่อถือไม่บวกมูลค่างานเกินความเป็นจริง
6.สร้างโกดัง สร้างโรงงาน เรารับประกันงานรั่วซึ่ม 1 ปี และรับประกันโครงสร้าง 10 ปี
7.การเสนอราคารวดเร็วเที่ยงตรง เป็นบริษัทเดียวที่สามารถเสนอราคาได้ในเวลาเพียง
5 นาที
8.เหล็กโครงหลังคาและแปเราใช้เหล็กกาวาไนช์ ทำให้ทนสนิมอายุการใช้งานยาวนาน
ความแข็งแรง 3500 KSC
9.หลังคาเราเป็นระบบคลิ๊ปล็อคทำให้ไม่มีการยิงน็อตจากหลังคาลดความเสี่ยง
หลังคารั่ว
10.ลูกค้าทำสัญญากับบริษัทผู้ผลิตโดยตรงทำให้ลูกค้ามั่นใจในการรับประกัน
และเงินไม่สูญไม่ผ่านคนกลาง
โทร 0817052132 หลุยแฮปปี้มีบ้าน ID Line :@happymeebaan
ลิงค์ไลน์ >> https://lin.ee/hT7pyNU
เวบไซท์>> https://www.happy-warehouse.com/
ยูทูป >> https://www.youtube.com/c/Happymeebaan
เฟสบุ้ค >> https://www.facebook.com/happymeebaan.warehouse.home/
รับสร้างโกดัง,สร้างโรงงาน,รับสร้างโรงงาน,สร้างคลังสินค้า,รับสร้างคลังสินค้า,สร้างโกดังสำเร็จรูป, โกดัง,คลังสินค้าสำเร็จรูป,โกดังราคามิตรภาพ,รับสร้างคลังสินค้า,HappyWarehouse,Warehouse,แวร์เฮ้าส์,โกดังไร้เสากลาง,โกดังสร้างไว,เหล็กไวด์แฟรงค์,แบบโรงงาน,แบบโกดัง,แบบโรงงานฟรี,แบบโกดังฟรี,แจกแบบโกดัง,แจกแบบโรงงานสร้างโกดัง,รับ สร้าง โกดัง โรงงาน,รับ สร้าง โกดัง,รับสร้าง โรงงาน ขนาด เล็ก,สร้าง โกดัง เอง,ก่อสร้าง โกดัง,สำนักงานสองชั้น,อาคารสองชั้น,รับสร้างโกดัง,รับสร้างโรงงาน,รับสร้างคลังสินค้า,รับ สร้าง โรงงาน,รับ สร้าง โกดัง, ,หลุยแฮปปี้มีบ้าน,Louishappymeebaan,Louishappywarehouse ,สร้างโกดัง ,สร้างโรงงาน,สร้างคลังสินค้า ,รับสร้างโกดัง ,รับสร้างโรงงาน,รับสร้างคลังสินค้า ,โกดังสำเร็จรูป ,สร้างโกดังเช่า ,โกดังให้เช่า ,ให้เช่าโกดัง ,warehouse,happywarehouse ,Home ,Knockdown ,Knockdownhome ,Prefab ,รับสร้างโกดังสำเร็จรูป ,สร้างโกดังสำเร็จรูป ,สร้างบ้านสำเร็จรูป,สร้างบ้านน็อคดาวน์,สร้างบ้าน ,รับสร้างบ้าน,แบบบ้าน ,แบบโกดัง ,แบบโรงงาน ,แบบคลังสินค้า ,แบบบ้านน็อคดาวน์