Last updated: 20 ส.ค. 2568 | 3851 จำนวนผู้เข้าชม |
 
                    รับสร้างโครงการโกดังให้เช่า รับออกแบบปรึกษาการสร้างโกดังให้เช่า
โกดังให้เช่าขอนแก่น ราคาถูก คืนทุนไว
สนใจสร้าง หรือ เช่าที่ขอนแก่น โทรตรงที่ผม 0817052132
ที่ตั้ง https://maps.app.goo.gl/m8L8VNSCfiKQSn7fA
ราคาโปรโมชั่น 80 บาท /ตรม.
 รู้มั้ยครับทำโกดังเช่า 4,500 ตรม.ใช้เงินกี่บาท?
 เราเริ่มวางผัง มกราคม 2567 และถมดิน วางระบบน้ำ ระบบไฟฟ้า ตอกเสาเข็ม ทำฐานราก บดอัดถนน
จนปัจุบัน 6 เมษายน 2567 เริ่มดำเนินการติดตั้งโครงสร้างหลัก เป็นไปตามแผนงานที่วางไว้เป็นอย่าง
 ค่าใช้จ่ายแบ่งออกเป็นเบื้องต้นดังนี้
1. ค่าเขียนแบบขออนุญาต มูลค่า 660,000 บาท
2. ค่าสร้างโกดังคลังสินค้า ฐานราก โครงสร้าง ระบบไฟฟ้า 4,500 ตรม.
ขนาด 25x45x7.2 m จำนวน 2 หลัง ขนาด 50x45x7.2 m จำนวน 1 หลัง
มูลค่างาน 33.3 ล้านบาท เฉลี่ย 7,400/ตรม
3. ค่าสาธารณูปโภค เช่น ถมดิน กำแพงกันดิน รั้ว รางระบายน้ำ ระบบน้ำ ระบบไฟฟ้า ถนน และอื่นๆ ประมาณ 15 ล้าน
รวมมูลค่าโครงการโดยประมาณ 49 ล้าน
แผนระยะเวลาก่อสร้าง 8 -12 เดือน
ก่อนหน้านี้เราใช้เวลาในการออกแบบผัง ออกแบบวิศวกรรเบื้องต้น ทำราคาเบื้องค้น ข้อกฏมาย ปรึกษาเจ้าหน้าที่ท้องถิ่น 
ศึกษาความเป็นไปได้ต่างๆ ใช้เวลา 2 เดือน ล่วงหน้า
สนใจปรึกษาตรงที่ผมโทร 0817052132
หลุยแฮปปี้มีบ้าน ID Line :@happymeebaan
ลิงค์ไลน์ >> https://lin.ee/hT7pyNU
เวบไซท์>> https://www.happy-warehouse.com/
ยูทูป >> https://www.youtube.com/c/Happymeebaan
เฟสบุ้ค >> https://www.facebook.com/happymeebaan.warehouse.home/
ติ๊กต๊อก >> https://www.tiktok.com/@happymeebaan?_t=8ZyzGSDLBmE&_r=1
 
รายละเอียดโกดัง  WH-HC 25x45 ม. สูง 7.2 เมตร เสา6 ม. ทรัส 1.2 ม. จำนวน 2หลัง
สเปค
1- เสาเหล็กไวแฟรงค์ จั่วโครงถักเหล็กกล่องกาวาไนส์ ทาสี ดำ หรือ น้ำเงินเสา WF 300x150 WF 150x75
จั่วโครงถักหลัก เหล็กกล่องกาวาไนส์ ตามมาตรฐานวิศวกรรม Happy
2- หลังคาเมทอลชีทหนา 0.4 มม. สีดองบู ดองกุ๊ก พร้อม PE กันร้อน หนา 5 มม
หลังคาระบบคลิปล็อคป้องกันการรั่วซึม แปหลังคา กาวาไนส์ไร้สนิม โอเมกา หนา 1.5 มม ระยะแอด 1 เมตร พร้อมคลิ้กล็อค
3- ผนังเมทอลชีทหนา 0.4 มม. สีดองบู ดองกุ๊ก แปผนังกาวาไนส์ โอเมกา หนา 0.8 มม ระยะแอดแป 1 เมตร
4-เกร็ดระบายอากาศ สูง 1 เมตร รอบด้าน ตามแบบ
5- เว้นงานก่ออิฐ 2.5 เมตร รอบด้าน
6- ประตูสไลด์เมทัลชีท รางแขวนบน ขนาด 5x5 จำนวน 2 บาน
7-หลังคาโปร่งแสง 4 ช่วงเสา ยาวตลอดแนว
8- กันสาดเมทัลชีทไม่มี PE สีดองบู ดองกุ๊ก หนา0.4มม ขนาด 25x6 เมตร 6x4 เมตร และ 6x4 เมตร
9-ติดตั้ง J bolt
 
ขนาดโกดัง WH-HC 50x45 ม. สูง 7.2 เมตร เสา6 ม. ทรัส 1.2 ม. จำนวน 1 หลัง
สเปค
1- เสาเหล็กไวแฟรงค์ จั่วโครงถักเหล็กกล่องกาวาไนส์ ทาสี น้ำเงิน เสา WF 400x200 WF 300x150 WF 250x125
จั่วโครงถักหลัก เหล็กกล่องกาวาไนส์ ตามมาตรฐานวิศวกรรม Happy
2- หลังคาเมทอลชีทหนา 0.4 มม. สีดองบู ดองกุ๊ก พร้อม PE กันร้อน หนา 5 มม
หลังคาระบบคลิปล็อคป้องกันการรั่วซึม แปหลังคา กาวาไนส์ไร้สนิม โอเมกา หนา 1.5 มม ระยะแอด 1 เมตร พร้อมคลิ้กล็อค
3- ผนังเมทอลชีทหนา 0.4 มม. สีดองบู ดองกุ๊ก แปผนังกาวาไนส์ โอเมกา หนา 0.8 มม ระยะแอดแป 1 เมตร
มีกั้นผนังตรงกลางอาคาร
4-เกร็ดระบายอากาศ สูง 1 เมตร รอบด้าน ตามแบบ
5- เว้นงานก่ออิฐ 2.5 เมตร รอบด้าน
6- ประตูสไลด์เมทัลชีท ขนาด 5x5 จำนวน 4 บาน
7- กันสาด 6x4 เมตรจำนวน 4 ชุด กันสาด 50x6 เมตรด้านหน้า เมทอลชีทหนา 0.4 มม. สีดองบู ดองกุ๊ก
8-หลังคาโปร่งแสง 4 ช่วงเสา ยาวตลอดแนว
9-ติดตั้ง J bolt
 
เริ่มต้นจากการศึกษาข้อกฏหมายต่างๆ ด้านการก่อสร้างโกดัง ปรึกษากับวิศวกร เจ้าหน้าที่ท้องที่ พร้อมทั้งพูดคุยปรึกษา
กับเจ้าของ เจ้าหน้าที่ในส่วนต่างๆ ทีมถมดิน กำแพงกันดิน รั้ว รางน้ำ ถนน ระบบน้ำ ระบบไฟฟ้า เพื่อหาข้อสรุปแนวทาง
เบื้องต้นให้ครบถ้วนที่สุดเท่าที่เป็นไปได้
แนวคิดหลักในการออกแบบโครงการโกดังให้เช่าคือ
1. ขนาดของโกดัง ที่เหมาะสมในการปล่อยเช่าทำได้ทั้งขนาดใหญ่และกั้นภายในขนาดเล็ก
รวมทั้งการออกแบบประตูให้รถใหญ่เข้าได้ ให้รถทั่วไปเข้าออกได้ กันสาดให้สะดวกต่อการใช้
2. ระยะร่นของตัวโกดังด้านกฏหมาย โครงการนี้ ใช้ระยะที่ 5 เมตร 2 ด้าน 10 เมตร 2 ด้าน
3. ถนนโครงการ ถนนระหว่างอาคาร ออกแบบให้รถเทเลอร์เข้าได้
4. ระบบไฟฟ้า 3 เฟส แต่สามารถ แยกเป็นแต่ละห้องเช่าได้
5. ระบบห้องน้ำ ระบบน้ำ สะดวกสบาย
6. ระบบรางระบายน้ำ ป้องกันน้ำขัง ในโครงการ
7. กำแพงกันดิน รั้ว เพื่อความปลอดภัยในโครงการ
ส่วนสำคัญอีกอย่าง เราควรเว้นด้านหน้าโครงการ ที่จะเป็น พื้นที่ส่วนสำคัญและแพงสุดในอนาคต
ไว้สำหรับพัฒนาเป็น อื่นๆ จึงได้ผังออกมาดังนี้



จากนั้นเริ่มการออกแบบโครงสร้างอาคาร เพื่อดำเนินการคิดราคาภาพรวมงานหลัก คือค่าก่อสร้างโกดัง
เราออกแบบความสูงของโกดัง ที่ระดับหัวเสา 6 เมตร เพื่อให้ประตูสามารถทำได้สูงที่ระดับ 5 เมตร รถทุกชนิดเข้า-ออกได้
สบายๆ แถมด้วยงานกันสาดใช้งานได้อย่างเหมาะสม การออกแบบแบ่งให้สามารถกั้นอาคารจากขนาด 25x45 เมตร
ได้ที่ขนาด 25x20 เมตร หรือ 25x25 เมตร

 
 
 
 




 
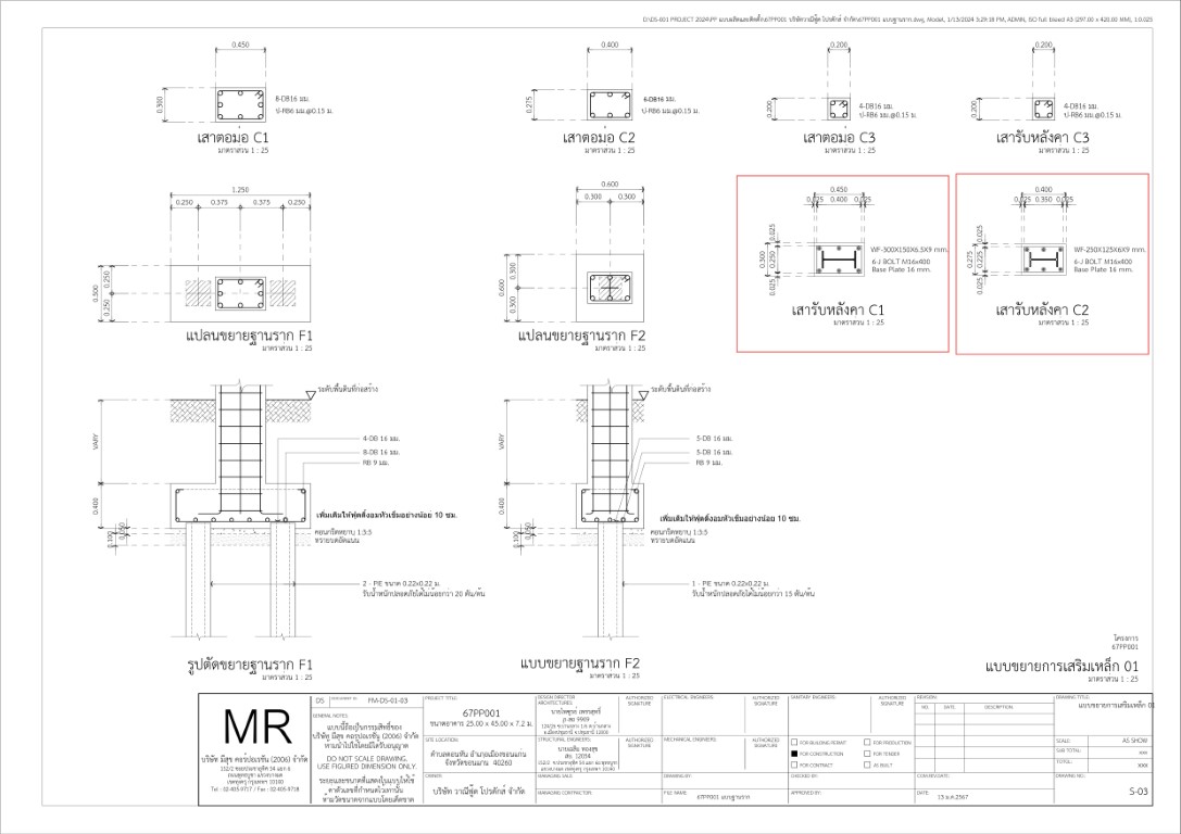
 จากนั้นก็ทำราคางานโครงสร้างเพื่อให้นักลงทุนทราบถึงราคาค่าก่อสร้างที่จะเกิดขึ้น จากนั้น ก็ออกแบบงานฐานราก
ตามพื้นที่ที่กำหนด หลังนี้ออกแบบ โดยการตอกเข็มจุดรับโครงสร้างเสา และตรงการเป็นการบออัดพื้นดินและเทคอนกรีต
พื้นหนา 15 ซม.
 
 
 
 
จากนั้นก็เริ่มดำเนินการผลิตโครงสร้างจากที่โรงงานและไปติดตั้งหน้างาน







 



















 
โกดังให้เช่าราคาถูก ขอนแก่น มีจำนวน 8 หลัง
♡ ขนาด 526.5 ตร.ม. (25X22.5x7.5 เมตร) 
สามารถรวม 2 หลังเป็น 1หลังได้
ห้องน้ำ ขนาด 2.5x3 เมตร แบ่งเป็น2 ห้อง
โปรโมชั่นภายในปีนี้ ค่าเช่า 80 บาท/ตรม/เดือน ( 45,000 บาท/หลัง)
สนใจติดต่อ คุุณหลุยส์ 081-7052132
Line ID :: @happymeebaan
ที่ตั้ง https://maps.app.goo.gl/m8L8VNSCfiKQSn7fA