Last updated: 15 เม.ย 2564 | 3400 จำนวนผู้เข้าชม |
แจกแบบ 3D แบบกั้นห้อง แบบคลังสินค้า ขนาดเล็ก ฟรี
แจกแบบบ้านสำเร็จรูป แบบบ้านน็อคดาวน์ แบบรีสอร์ทขนาดเล็ก
แจกแบบบ้าน แบบบ้านน็อคดาวน์ 3D แจกฟรี
ติดต่อสายตรงมาที่ วิศวกร ประเมินราคาที่ชัดเจน
โทร 0817052132 Line : @happymeebaan
ลิงค์ไลน์ >> https://lin.ee/hT7pyNU
เวบไซท์>> https://www.happy-warehouse.com/
ยูทูป >> https://www.youtube.com/c/Happymeebaan
เฟสบุ้ค >> https://www.facebook.com/happymeebaan.warehouse.home/
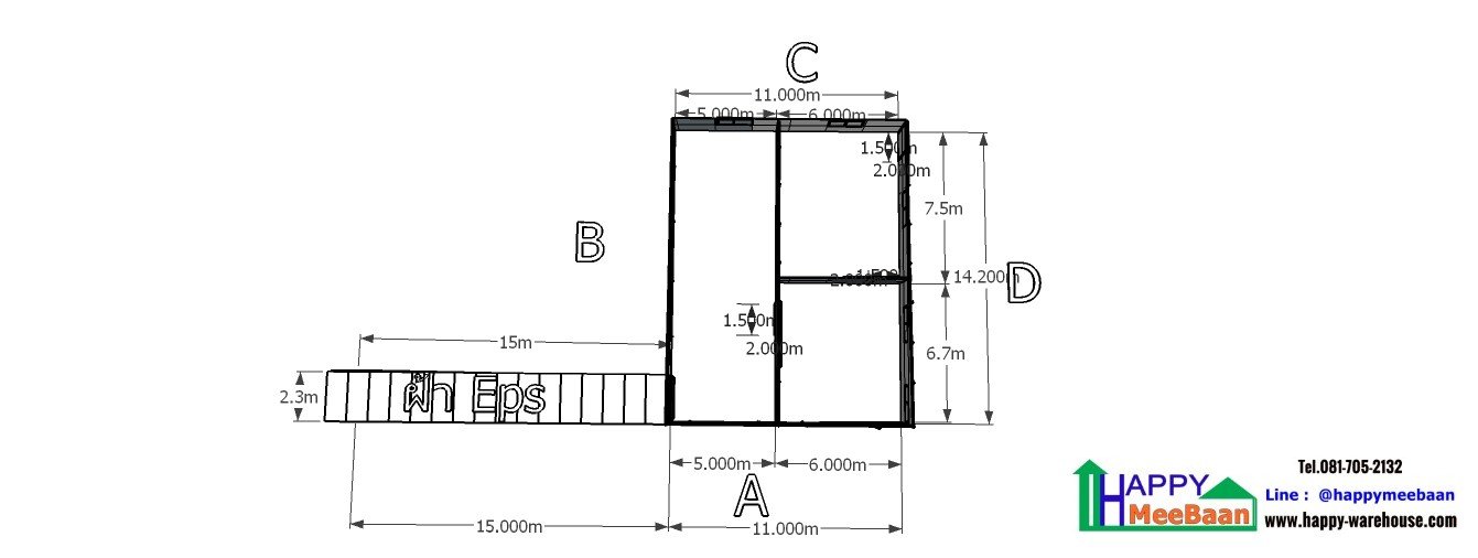
ตัวอย่างการกั้นห้อง







Office ผนังสำเร็จรูป ขนนาด 11 x14.2 เมตร สูง 3 เมตร สโลปตามพื้นที่จริง
1-ผนัง Sandwich Panel Happy สีขาวเทา หนา 5 ซม.
2-โครงสร้างเหล็กตามแบบวิศวกรรมบริษัท ( เหล็กไร้สนิม )
3-ฝ้า ใช้ผนัง Sandwich Panel Happy หนา 5 ซม. ( ทำใต้โครงหลังคา )
4-ประตูกระจกสวิง และรางแขวนอลูมิเนียมกรอบขาว กระจกเขียว ขนาด2.0x2.0
เมตร1 บาน
5-ประตูกระจกรางแขวนอลูมิเนียมกรอบขาว กระจกเขียว ขนาด 1.5x2.0 เมตร 3 บาน
6-หน้าต่างกระจกสไลด์อลูมิเนียมกรอบขาวกระจกเขียว ขนาด 0.95x1.78 เมตร 7 บาน
7-กั้นผนังด้วย Sandwich Panel Happy สีขาวเทา หนา 5 ซม. ตามแบบ 3D
โดยใช้ผนังเดิม 2 ด้าน
8-งานฝ้าภายนอก ใช้ผนัง Sandwich Panel Happy หนา 5 ซม. กว้าง 2.3 เมตร
ยาว15 เมตร
ราคาการกั้นห้อง เริ่มที่ 6,000 - 12,000 บาท/ตรม ขึ้นกับรายละเอียดงาน
ติดต่อสายตรงมาที่ วิศวกร ประเมินราคาที่ชัดเจน
โทร 0817052132 Line : @happymeebaan
ลิงค์ไลน์ >> https://lin.ee/hT7pyNU
เวบไซท์>> https://www.happy-warehouse.com/
ยูทูป >> https://www.youtube.com/c/Happymeebaan
เฟสบุ้ค >> https://www.facebook.com/happymeebaan.warehouse.home/
แบบบ้าน #แบบรีสอร์ท #แบบออฟฟิศ #แบบบ้านฟรี #แจกแบบบ้าน
แบบบ้าน,แบบบ้านฟรี,แบบรีสอร์ท,บ้านน็อคดาวน์,บ้านสำเร็จรูป,แจกแบบบ้าน,แจกแบบบ้านฟรี
บ้านสำเร็จรูป,บ้านน็อคดาวน์,สร้างออฟฟิศ,แบบบ้าน,แบบบ้านฟรี,แจกแบบบ้านฟรี ,โหลดแบบบ้าน,แบบบ้านน็อคดาวน์สวยๆ,แบบบ้านน็อคดาวน์ชั้นเดียว,บ้านน็อคดาวน์ 2 ชั้น,บ้านน็อคดาวน์ 2 ชั้นเล็กๆ,แบบบ้านน็อคดาวน์สวยๆ ราคาถูก,รีวิว บ้าน น็อค ดาวน์ pantip,สร้างบ้านน็อคดาวน์ด้วยตัวเอง,บ้านน็อคดาวน์โครงสร้างเหล็ก,,บ้านน็อคดาวน์ ผ่อนได้,แบบบ้านน็อคดาวน์สวยๆ,แบบบ้านน็อคดาวน์ชั้นเดียว,แบบบ้านน็อคดาวน์หลังเล็กๆ,บ้านน็อคดาวน์ ราคาไม่เกินสองแสน,บ้านน็อคดาวน์ราคาถูก หลักหมื่น,บ้านน็อคดาวน์มือสอง ราคาถูก,,สร้างบ้านน็อคดาวน์ด้วยตัวเอง,การทำฐานราก บ้านน็อคดาวน์,แบบ โครงสร้าง บ้าน น็อค ดาวน์,บ้านน็อคดาวน์โครงสร้างเหล็ก ,แบบบ้าน,แบบบ้านฟรี,แจกแบบบ้านฟรี ,โหลดแบบบ้าน